コンテンツにスキップ
リノベーション
東陽APの復活の家
補助金制度
施工事例
モデルハウス
Q&A
新築
東陽APの新築住宅
施工事例
新築モデルハウス
Skogのいえ
Skogのいえ-ナチュラル系提案住宅
施工事例
会社概要
スタッフ紹介
家づくりの思い
スタッフブログ
リノベーション
東陽APの復活の家
補助金制度
施工事例
モデルハウス
Q&A
新築
東陽APの新築住宅
施工事例
新築モデルハウス
Skogのいえ
Skogのいえ-ナチュラル系提案住宅
施工事例
会社概要
スタッフ紹介
家づくりの思い
スタッフブログ
施工事例
ホーム
»
施工事例
»
リノベーション「復活の家」
»
モダン
»
猫も犬も、家族みんなが快適に暮らせる家
リノベーション「復活の家」
猫も犬も、家族みんなが快適に暮らせる家
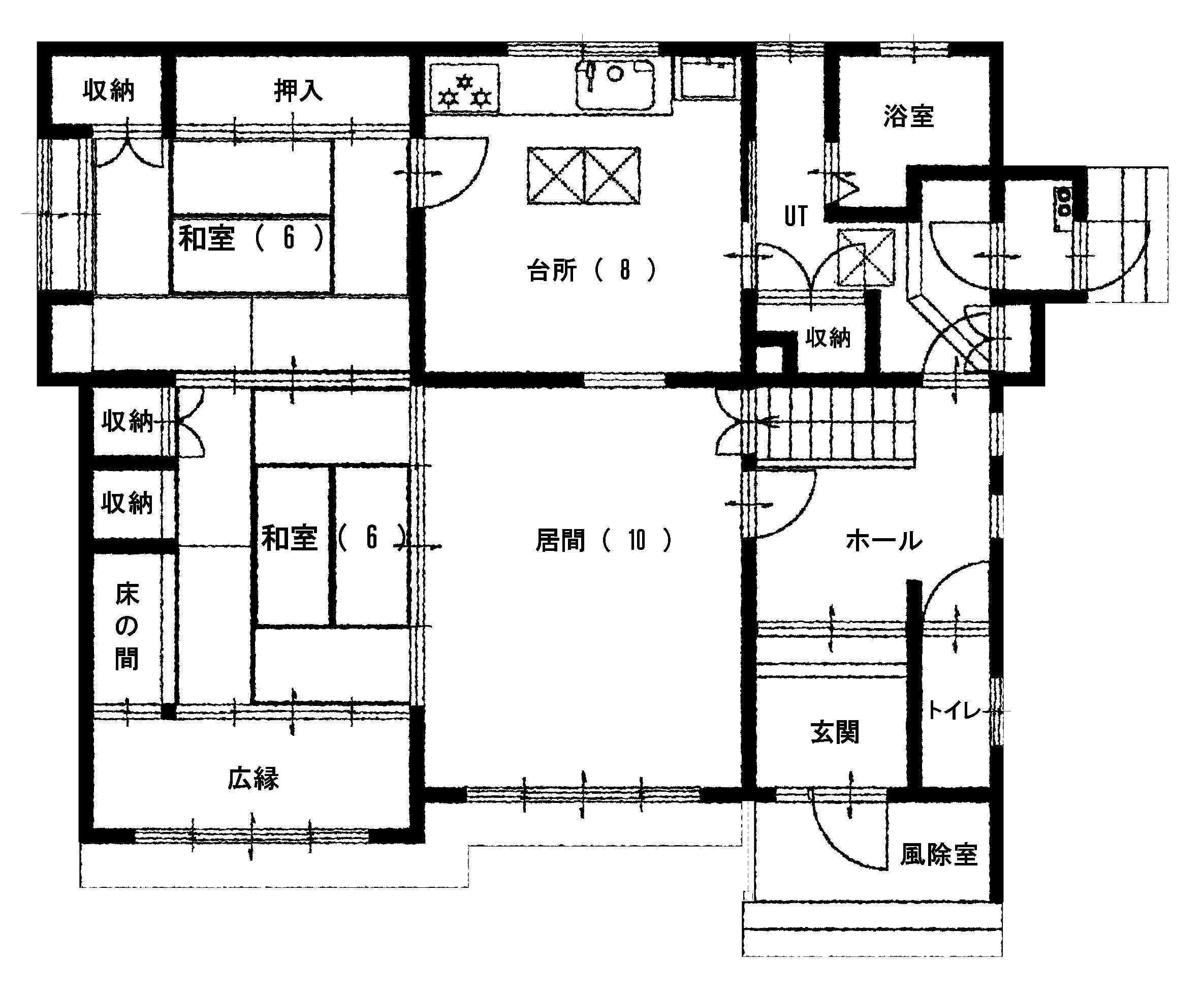
築44年
(旧住宅) 新築年月 昭和56年11月
BEFORE
延べ床面積
116.64㎡ (36.00坪)
1F85.05㎡ (26.25坪)
2F 31.59㎡ (9.75坪)
AFTER
延べ床面積
119.67㎡ (38.43坪)
1F 90.51㎡ (27.93坪)
2F 29.16㎡ ( 10.50坪)
Prev
前のページ
次のページ
Next